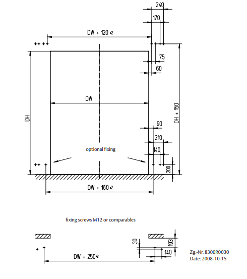
El espacio libre horizontal a ambos lados de la abertura de la puerta necesario para que la puerta se instale y funcione correctamente.

SINONIMOS
jambas laterales
despeje lateral
parapetos
INGLES
jamb
side clearance
side room
IMPORTACIA / ASOCIACION
puertas rápidas
puertas seccionales
cortinas enrollables
cortinas de aire
puertas de impacto
puertas frigoríficas
puertas de metal
GALERÍA



